|
Устанавливается на кронштейн рамы автомобиля, прицепа, а также в кузов бортовых автомобилей, любых марок GAZ, IVECO, URAL, KAMAZ, NEFAZ, MERCEDES, а также в помещении на специально отведенную для этого площадку. |
|
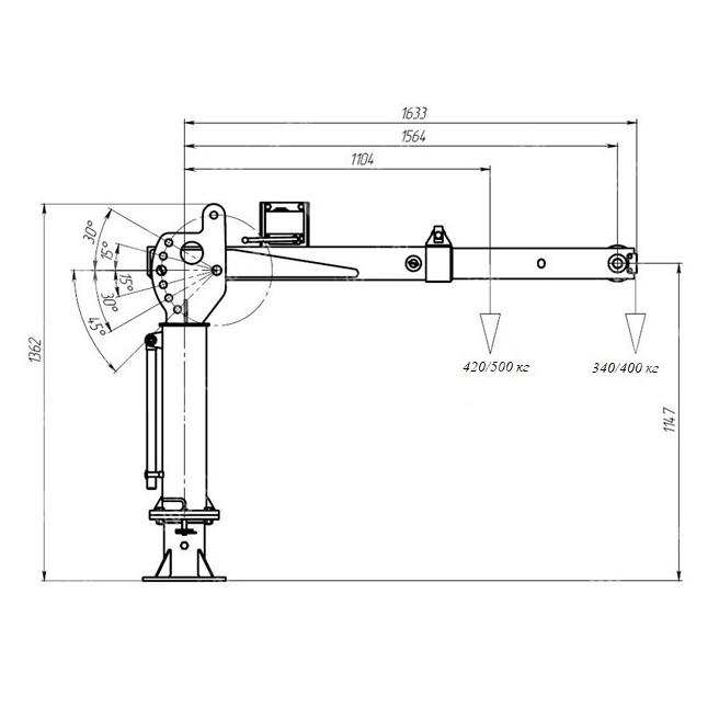
Высота подъема максимальная основание-крюк 2100 мм. |
|
Грузоподъемность на минимальном вылете 500 кг. |
|
Грузоподъемность на максимальном вылете 400 кг. |
|
Вылет стрелы минимальный 1250 мм. |
|
Вылет стрелы максимальный 1650 мм. |
|
Угол поворота 360° |
|
Высота в сложенном виде 1362 мм. |
|
Ширина в сложенном виде 550 мм. Масса полная 140 кг. Механизм подъема осуществляется ручной червячной лебедкой. Возможность прерывать подъем и опускание груза на любой высоте. Поворот на 360° на подшипниках. |
|
|
33000051194 Крано-Манипуляторная Установка (КМУ) (с поворотным механизмом)
Каталожный номер:
33000051194
Производитель:
УРАЛВАЛ
Цена по запросу
7
в наличии
Купить Крано-Манипуляторная Установка (КМУ) (с поворотным механизмом) вы можете оформив покупку через корзину, отправив готовую заявку через форму на сайте или связавшись с нашими менеджерами .
Предлагаем другие запчасти из раздела Лебедки из наличия на нашем складе и под заказ.
На все запасные части действует гарантия производителя. Возможна доставка транспортной компанией или самовывозом с нашего склада.
Возможно, Вам пригодится